Пхукет+

База недвижимости от застройщиков

Botanica The Valley ll

от 1042 м2

площадь

Сдан

завершение

от 77,1 млн.

стоимость

Комплекс будет состоять из 12 вилл с бассейном, с 4 или 5 спальнями, площадью от 1026 кв.м до 1897 кв.м, с видом на горы.
Дизайн сочетает в себе современность с роскошным стилем жизни. Каждая вилла включает гостиную и столовую открытой планировки, а также полностью оборудованную кухню с барной стойкой.
Бассейн окружен просторными террасами у бассейна, а более крупные типы вилл оборудованы большой крытой террасой на крыше.

Долина Ботаника расположена в популярном жилом районе Лаян. Примерно в 5 минутах езды от живописного пляжа Лаян и курортного комплекса Лагуна. До пляжей Банг Тао и Най Тон можно доехать на автомобиле за 10 минут. За 15 минут можно доехать до многочисленных достопримечательностей, включая рестораны, Боут-авеню, рынок вилл, Порто-де-Пхукет, Lotus's, спа-салоны и ночные клубы в районе Чонгтале и его окрестностях.
Панорамный вид на холмы, беседка на крыше, душ на открытом воздухе, кладовка, крытая парковка на 2 машины, 24-часовая охрана.

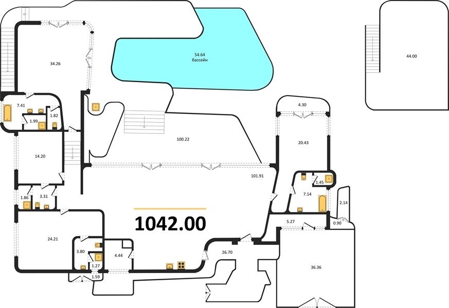
ТИПОВЫЕ ПЛАНИРОВКИ ДОМОВ

4 комнатная

Площадь от 1042 м2

Стоимость от 77.095.000 ฿

Пожалуйста укажите телефон
Согласен с политикой конфиденциальности
Необходимо согласие
5 комнатная

Площадь от 1070 м2

Стоимость от 109.210.000 ฿

Пожалуйста укажите телефон
Согласен с политикой конфиденциальности
Необходимо согласие

Botanica The Valley ll это

ОНЛАЙН КОНСУЛЬТАЦИЯ

получите больше информации о проекте
и задайте свои вопросы

НЕ НАШЛИ ПОДХОДЯЩЕЕ?

Укажите параметры недвижимости и мы подберем варианты в течение дня бесплатно

Пожалуйста укажите телефон
Согласен с политикой конфиденциальности
Необходимо согласие
Написать в мессенджер